Nádrž na vodu 8000l hranatá

1 670,51  s DPH

Použitie: podzemná samonosná nádrž

Objem: 8000L

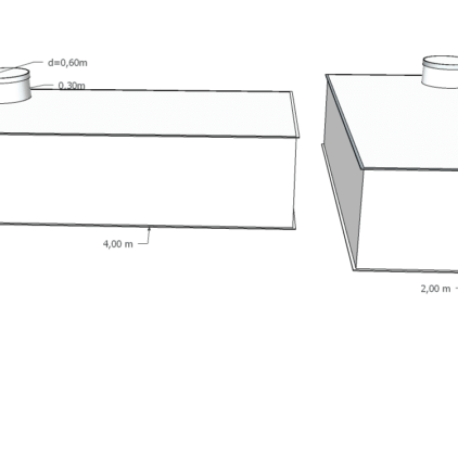
Šírka: 200cm

Dĺžka: 400cm

Výška: 100cm + 30cm revízny vstup

Hmotnosť: 210kg

Systém vystuženia: Vnútorný

Farba:  PP-C Natur




95 ,

Nádrž 8m3

Plastová podzemná nádrž s objemom 8000L je konštruovaná ako samonosná. Vo väčšine prípadov pod ňu spravíte štrkové lôžko/železobetónovú platňu, obsypete štrkom 8-16 a na vrch vrátite malú vrstvu zeminy.

Revízny vstup (komín): štandardne používame priemer 60cm a výšku 30cm. Každú podzemnú nádrž je v budúcnosti možné navýšiť nadstavcom revízneho vstupu kvôli terénnym úpravám. Pri použití nadstavca sa riaďte návodom priloženým k nádrži.

  • návod na osadenie,
  • pochôdzny poklop,
  • prípadne prechody pre kanalizačné rúry alebo vodovodné hadice,
  • pokladničný doklad,
  • vyhlásenie o parametroch (doklad potrebný ku kolaudácii).

SK TP 20/0029 – prvá strana slovenského technického posúdenia

Pri použití nádrže ako:

A) nádrž na zachytávanie dažďovej vody môžete štandardne použiť jeden či viacero prítokov na zvody z rín a jeden prepad, ktorý bráni preplneniu nádrže. Okrem toho si do nádrže môžete vybrať aj prestup pre HDPE hadicu ľubovoľného priemeru.

B) nádrž na pitnú vodu si zvoľte prechodky pre hadice priemeru ktorý používa vami vybrané čerpadlo. Nádrž pred použitím vydezinfikujte. 

Schému pozícii nájdete medzi obrázkami produktu, poprípade na tomto odkaze.

Prítok = prechodka s gumičkou navarená na plášť nádrže v maximálnej výške (úplne pod vrchom žumpy).

Prepad = prechodka s gumičkou navarená na plášť nádrže o 4cm nižšie ako prítok.
01

PP-C Materiál

nádrže zvárame iba z prvotriedneho plastu od Slovenského výrobcu Aquatec

02

SK TP 20/0029

s certifikátom , statickým posudkom a atestom vodotesnosti

03

Vystužená zvnútra

navrhnutá statikom pre čo najvyššiu odolnosť

hranatá plastová nádrž ZSN 8m3
04

Nízka hmotnosť

s nádržou môžete jednoducho manipulovať a montovať ju, či prepraviť bežnými vozidlami

05

Ekologická nádrž

100% vodotesná nádrž chráni podzemné vody aj okolité prostredie

06

Pochôdzny poklop

získate v cene ako súčasť dodania

Hmotnosť237 kg
Objem

8000L

NAŠA DOPRAVA

Pozor: Za viacero výrobkov platíte dopravu iba raz.
  • spoplatnená sumou 0.50 €/km

  • výpočet je nasledovný: počet km medzi Beluša, 01861 a Vašim bydliskom *0,50 €/km

 

KURIÉRSKA SPOLOČNOSŤ

Pozor: Prepravná spoločnosť si účtuje každý kus tovaru osobitne!
  • 10 € za poklop a iné menšie zásielky do hmotnosti 3 kg

  • 45-85 € za vodomerné šachty 100x150cm a 100x130cm, valcovú nádrž 1m3

 

VLASTNÁ DOPRAVA

Kupujúci zabezpečí prepravu sám, na vlastné náklady.

Možno by sa Vám páčilo…